Luxeriöse Renaissance Villa im Herzen Tirols

Dieses Anlageobjekt aus der Renaissance Zeit wurde einer Kernsanierung unterzogen und nach Maßgabe modernster Bautechniken unter Einbeziehung der Feng Shui Methode mit ausschließlich natürlichen Baustoffen in seinen ursprünglichen Zustand aus dem 16ten Jahrhundert gebracht. Die Leidenschaft des Anlegers für historische Gebäude, seine fast unendliche Liebe zum Detail ist bei diesem Schmuckstück in allen Facetten spür- und sichtbar.

Projektvorstellung

Die Stadtvilla aus dem 16.ten Jahrhundert besteht aus drei großzügigen Wohneinheiten, wobei jede zumindest über einen Balkon verfügt.
Im ersten Obergeschoß befindet sich eine zumindest über 400 Jahre alte Zirbenstube mit Kachelofen, die demontiert, aufwendig von Fachleuten restauriert und wieder  originalgetreu eingebaut wurden. Sogar der vor der Kernsanierung noch bestandene Holzriemenboden der Stube wurde diesem aufwendigen Prozess unterzogen.  
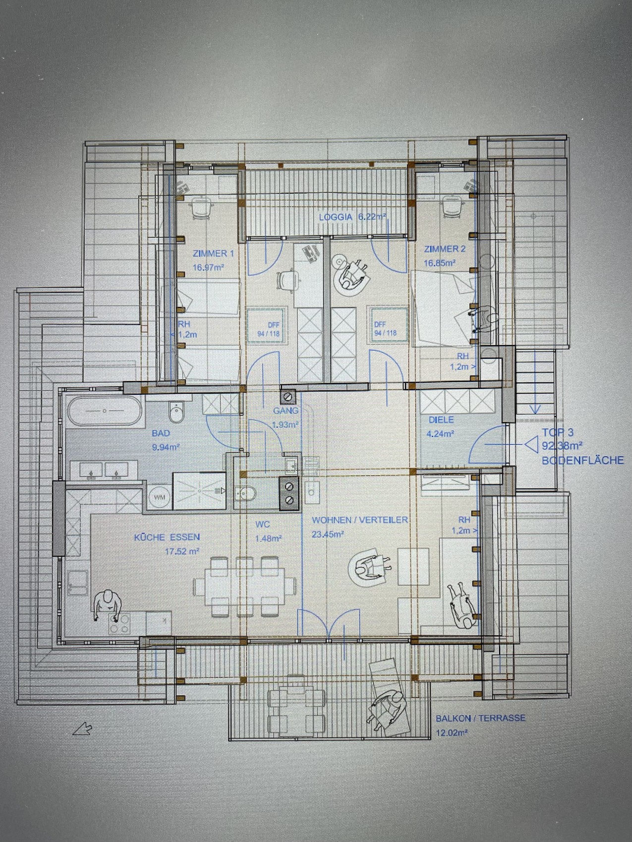
Das Penthouse, mit seinen bis unter das Dach reichenden, hohen Räumen besticht durch eine atemberaubende Sicht auf die darunter liegende Stadt.
Die Fassade wurde rekonstruiert und in ihren ursprünglichen Zustand ohne Verputz gebracht, sodass die Steine, mit welchem das Haus vor über 500 Jahren errichtet wurde, wieder sichtbar wurden.
Die Fassade wurden mit den ursprünglichen Strukaturen versehen und ab dem ersten Obergeschoss mit Lärchenholz verschalt. Der südseitige Balkon wurde ebenfalls originalgetreu nachgebaut. Auf der Talseite des Gebäudes wurden drei Terrassenbalkone angebracht, welche sich trotz der modernen Stahlbauweise harmonisch in die Gesamtoptik des Gebäudes eingliedern.
Alle Einheiten verfügen über massive Eichenböden mit Fußbodenheizung und Raumthermostaten. Im gesamten Innenraum wurde ausschließlich natürlicher, mineralischer  Gipsverputz verwendet.
Es wurde darauf geachtet, dass ausschließlich naturnahe Baustoffe verwendet wurden.

Einstellungen Ihrer Privatsphäre

Wir verwenden Cookies, die für den Betrieb unserer Website notwendig sind. Cookies zu anderen Zwecken werden nur verwendet, wenn Sie diesen zustimmen. Diese Cookies werden zu statistischen Zwecken genutzt und um externe Medien, wie z.B. eine google Karte einzubinden. Sie können die Einstellungen Ihrer Privatsphäre jederzeit ändern. Einen Link finden Sie am Ende jeder Seite. Mehr erfahren Sie in unserer Datenschutzerklärung.

Einstellungen Ihrer Privatsphäre

Wir verwenden Cookies, die für den Betrieb unserer Website notwendig sind. Cookies zu anderen Zwecken werden nur verwendet, wenn Sie diesen zustimmen. Diese Cookies werden zu statistischen Zwecken genutzt und um externe Medien, wie z.B. eine google Karte einzubinden. Sie können die Einstellungen Ihrer Privatsphäre jederzeit ändern. Einen Link finden Sie am Ende jeder Seite. Mehr erfahren Sie in unserer Datenschutzerklärung.

Ihre Cookieeinstellungen wurden gespeichert.